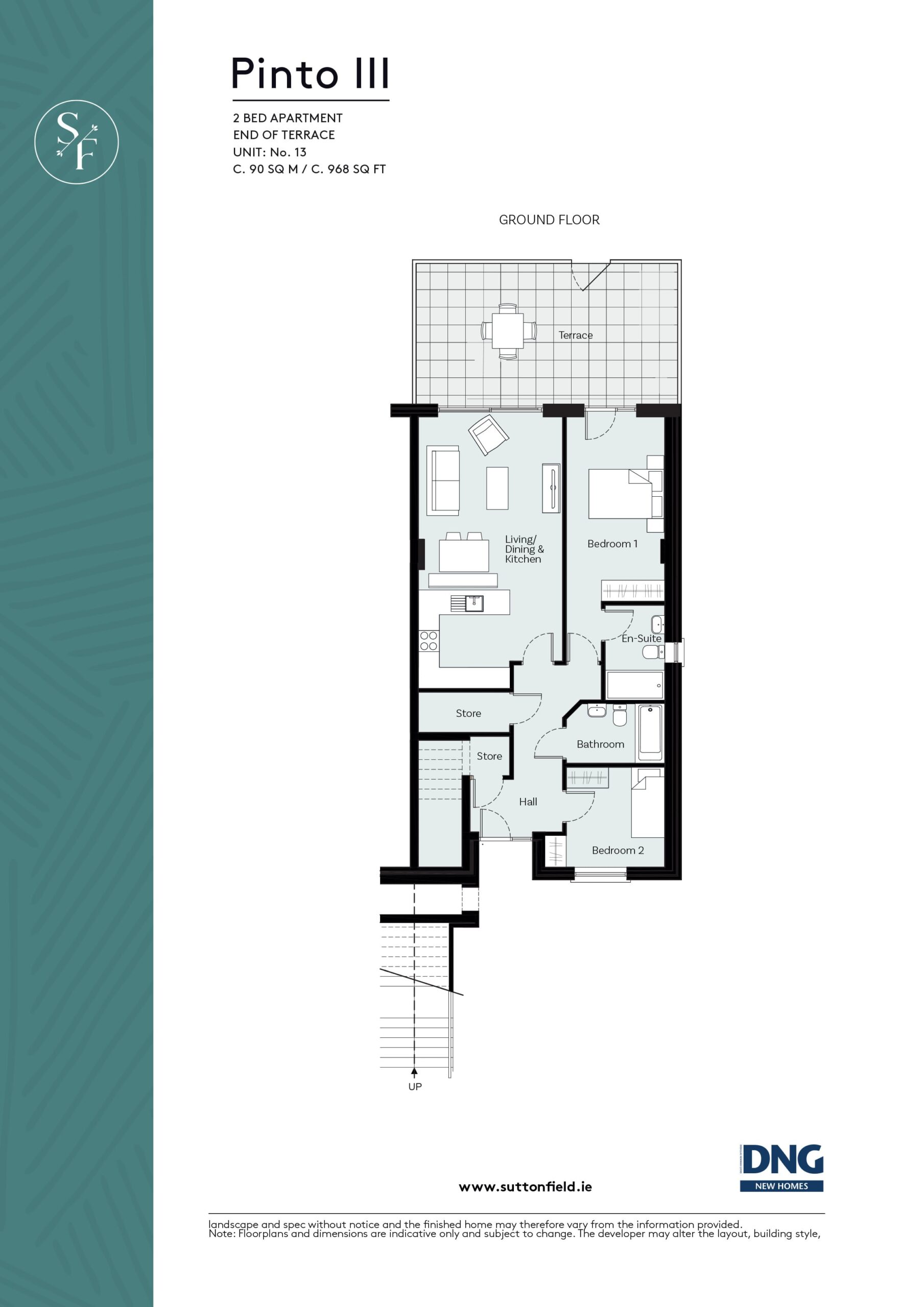
Floor Plans

Click to enlarge